Seascape of Flinders
Spacious modern home located a few moments walks to Flinders village cafes, beach, and golf course.
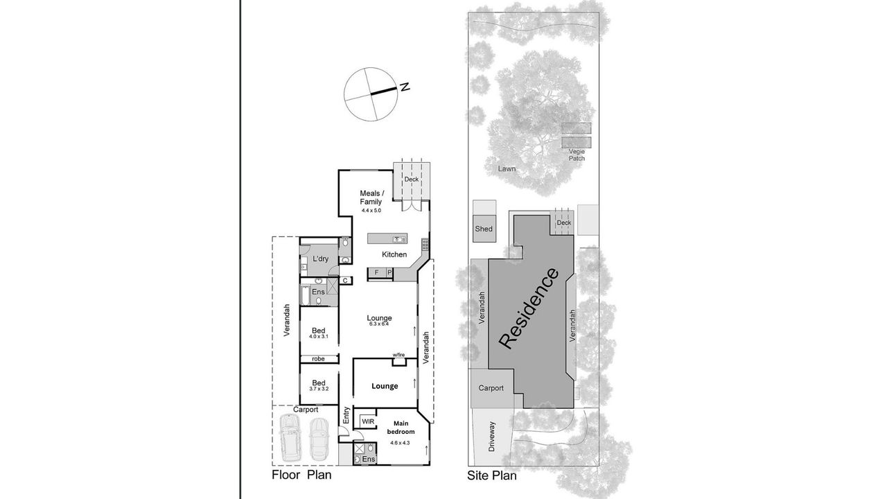
This beautifully renovated home is just a short walk from the beach, shops, cafes, and golf course. With high ceilings, north-facing windows, and a spacious open-plan kitchen, meals, and family area, it’s an entertainer's paradise. The rumpus room, complete with bean bags and board games, is perfect for family fun.
Outside, enjoy a large backyard with a deck, ideal for summer barbecues, and a citrus orchard for relaxation. Stay comfortable year-round with an open fireplace and reverse-cycle air conditioning in every bedroom and living area.
Sleeps 8; Quality linen and cleaning services are provided. However, we ask that you bring your beach towels.
Room 1 - Queen main bedroom ensuite bathroom, ceiling fan, spilt cooling-heating system.
Room 2 - Queen room, spilt cooling-heating system.
Room 3 - Twin Single Bunk Room ( Sleeps 4), spilt cooling-heating system.
Bathroom 1 Ensuite - shower, toilet.
Bathroom 2 Shower, bath, toilet
Plus, a powder room is located in the laundry.
Living Room 1 - Lounge, tv, open wood fire.
Living Room 2 - Lounge, tv, sound bar speakers, spilt cooling-heating system.
Two TVs, dvd, Foxtel, dishwasher, washing machine, clothes dryer, bath, hairdryer, iron-ironing board, wifi, indoor spa, fully fenced yard, Open fireplace, reverse cycle air conditioning, fly screens, ceiling fans, gas cook-top, microwave, coffee machine-Nespresso, gas bbq, mains water, bottled gas
Pets Considered - Subject to the Owner's Approval - additional pet levy applies
Bookings Subject to Owners Approval
Smoking Indoors, parties or large gatherings are prohibited at the property.
A refundable bond is required
The keys can be collected from the local office.
Registration No. STRA0055/18



Amenities
Air Conditioning
BBQ
BBQ AREA
Bathroom
Beach
Ceiling fans
Child friendly
Clothes dryer
Coffee machine
Deck
Dishwasher
Electric heating
Enclosed garden
Family
Fans
Fenced yard
Fireplace
Furniture outdoor
Garden area
Golf
Hairdryer
Heating electric
Kitchen
Laundry
Linen
Parking
Pets welcome
Refrigerator
TV
TV's multiple
Views
Village
Washing machine
WiFi
Bedrooms
Room 1
1 x Queen sized bed
Room 2
1 x Queen sized bed
Room 3
2 x Bunk bed


















